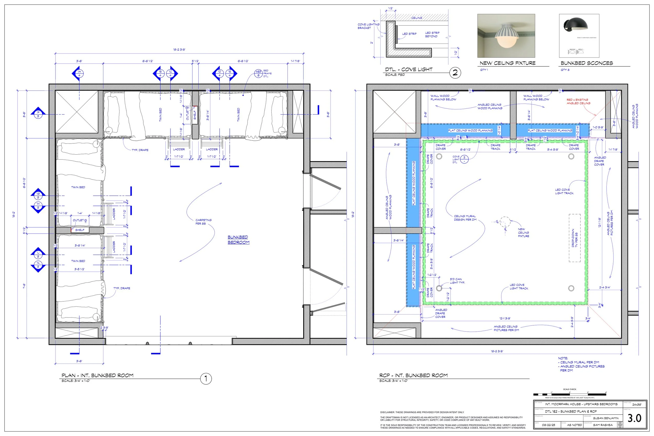
Built-in bunkbed design for a private client. Interior design by Susan Benjamin. All modeling and drafting done by me in Vectorworks.
Built-in bunkbed design for a private client. Interior design by Susan Benjamin. All modeling and drafting done by me in Vectorworks.