The work shown below is for the upcoming TV series The Burbs. As it is not yet released, do not distribute these images or any contained information.


The ‘Burbs

PD: Susie Mancini, SPV AD: Robert Joseph

Ext. Victorian House, Wisteria Lane, Uni backlot - Vectorworks drafting. Modifications include red new construction and blue purchased assets.


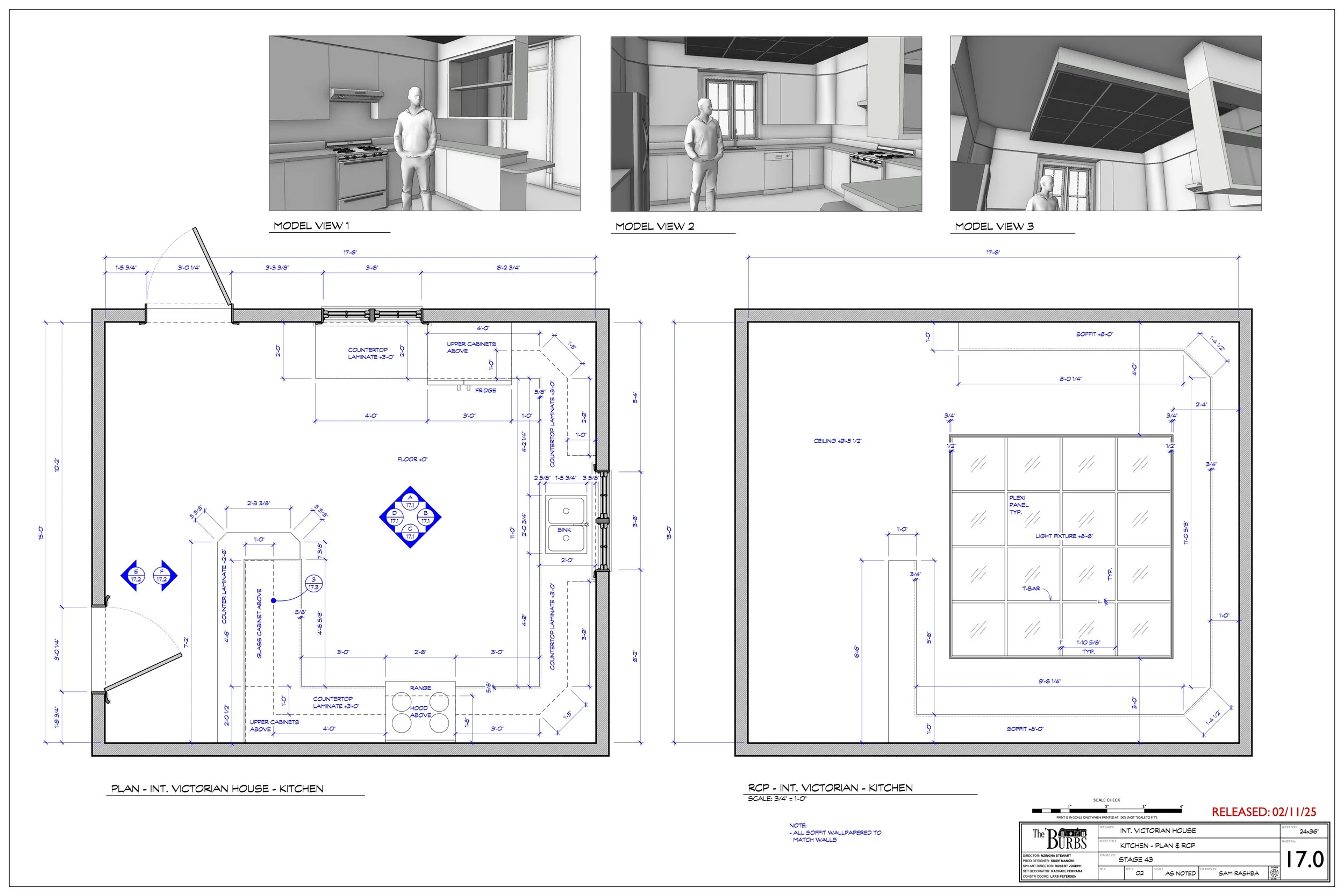
Int. Victorian House Kitchen - Vectorworks drafting.


Int. Victorian House basement - Vectorworks drafting.


Ext. Colonial House, Wisteria Lane, Uni Backlot - Vectorworks drafting. Modifications include red new construction and blue existing assets.