Being The Ricardos

PD: Jon Hutman, AD: Andres Cubillan 


Color Elevations created for Paint Dept


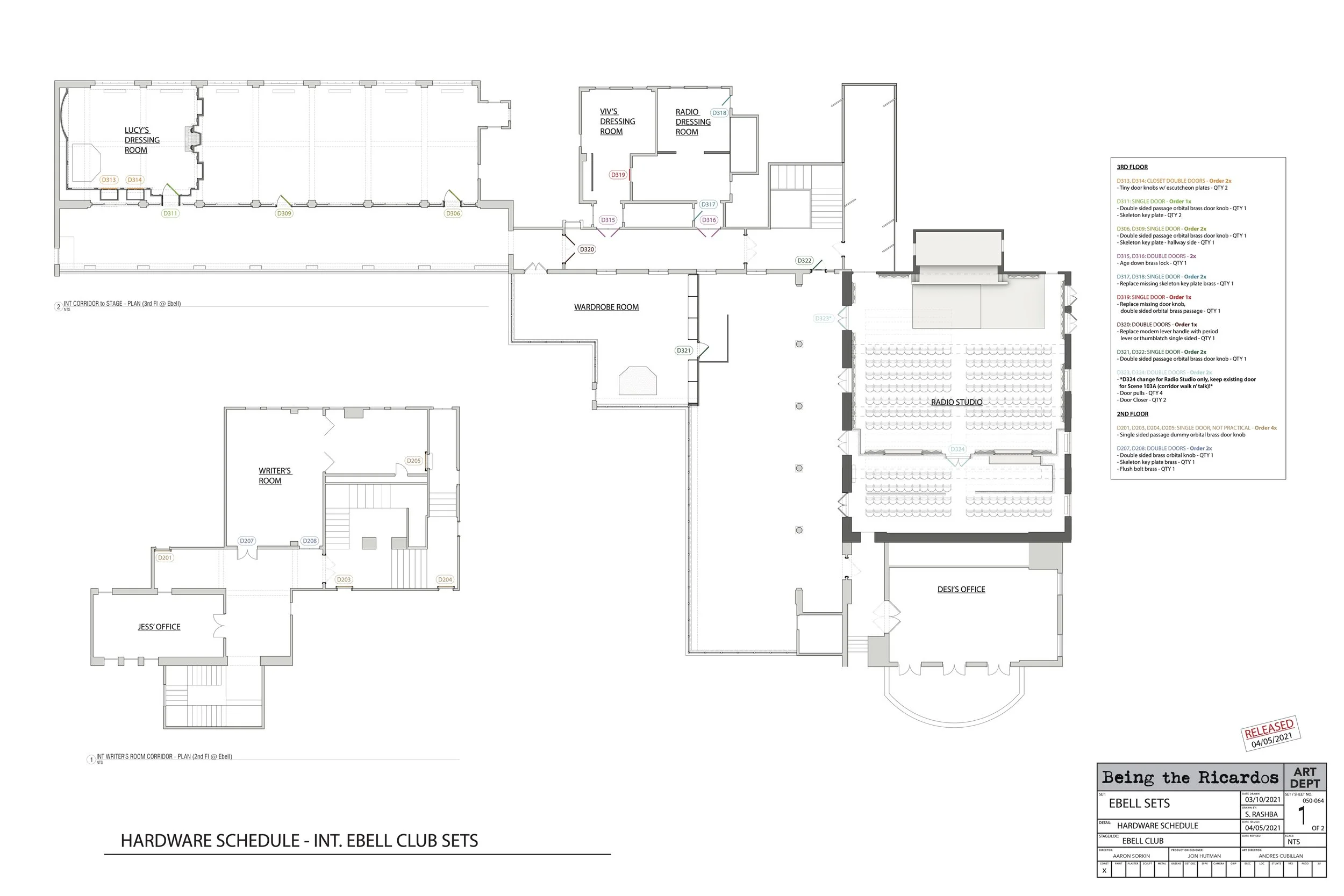
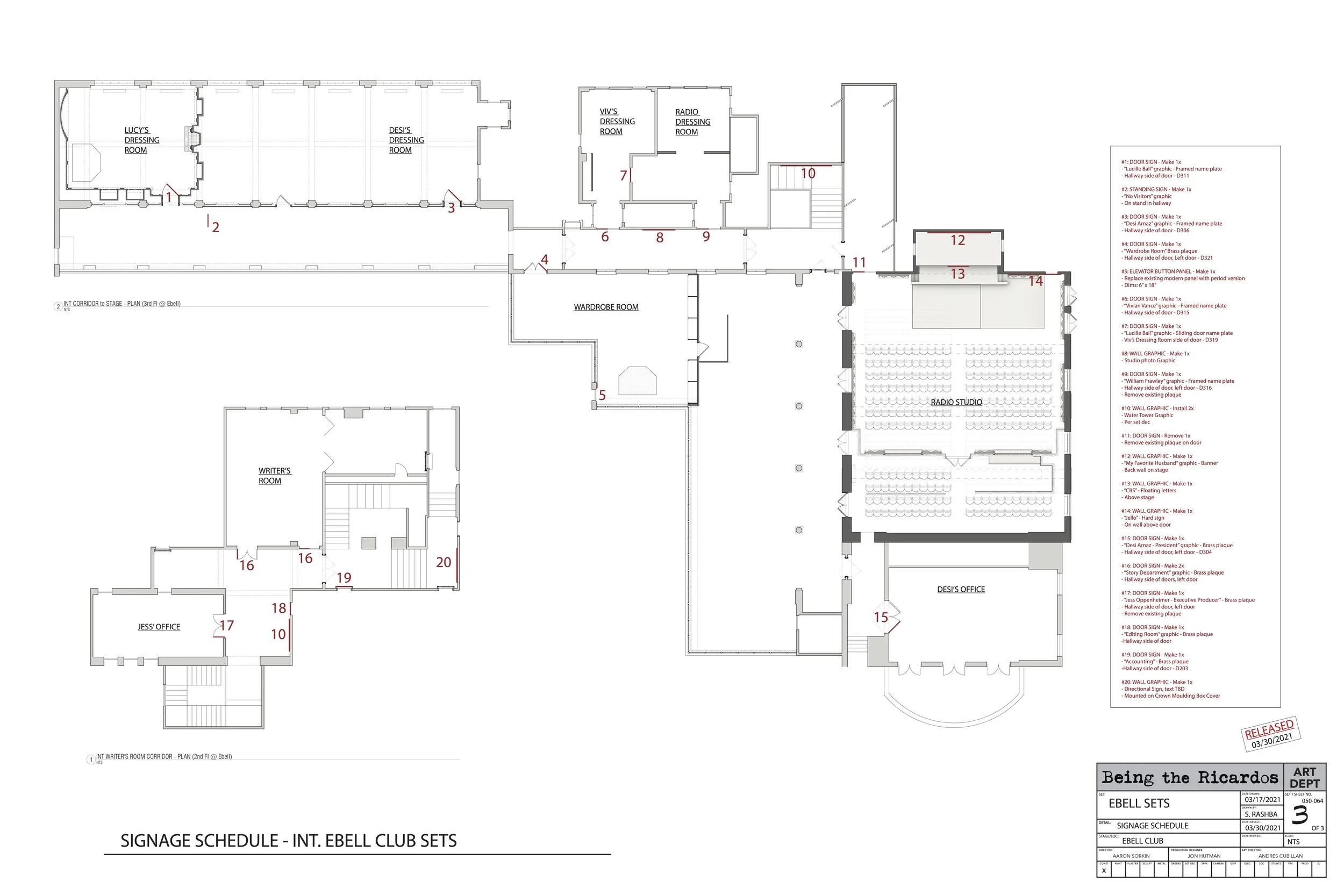
Hardware Schedules created for Construction


Drafting for misc box covers, wall filigree, moulding plant-ons, etc.